AG-DOM 5227 – Villa moderne avec piscine dans un nouvel immeuble

AG-DOM 5227
Nous proposons à la vente une villa nouvellement construite, construite sur deux niveaux, en position panoramique avec vue sur la mer, qui sera livrée finie.
Domus IDAG-DOM 5227
Termes et ConditionsVente
TypologieVilla
Surface (m²)315
Chambres à coucher3
Salles de bains4
Prix€ 3.400.000
Classe énergétiqueIn corso
Garage
VilleBordighera
place de parking
Superficie du jardin (m²)258
La villa est située dans un quartier calme et réservé, à une courte distance des plages. L’emplacement offre une vue panoramique sur la mer Ligure et la possibilité de rejoindre rapidement les principaux centres d’intérêt touristique. L’emplacement est idéal pour ceux qui veulent vivre le charme de la Riviera, sans renoncer à la commodité d’avoir, à moins d’une heure de route, l’aéroport international de Nice, la Principauté de Monaco et la Côte d’Azur.
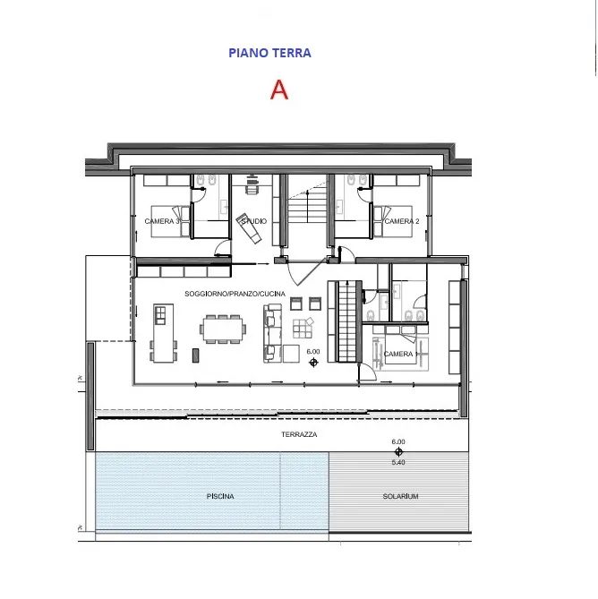
 La villa est conçue sur deux niveaux reliés par un escalier intérieur, qui permet l’accès direct au garage de 45 mètres carrés.
La surface habitable d’environ 225 mètres carrés est entourée d’un jardin disposé sur des bandes. Dans cette zone, une piscine à débordement sera insérée, qui, avec la zone solarium-détente, offrira un espace idéal pour passer d’agréables moments en plein air.
Au rez-de-chaussée il y a un espace ouvert avec une cuisine équipée d’îlot et un grand salon, le cœur de la maison, qui donne sur le jardin et la piscine. Le salon se caractérise par la présence de grandes portes-fenêtres qui, en plus d’assurer un éclairage naturel, permettent de créer une continuité avec l’extérieur.
Au même niveau que le salon, il y a aussi la zone de couchage, équipée d’une chambre principale avec placards et salle de bain privée avec accès à l’espace extérieur; deux chambres, toutes les deux avec salle de bains et un bureau.
Un escalier intérieur relie le sous-sol, avec une surface d’environ 90 mètres carrés, composé d’une zone utilisée comme cave, buanderie, pièces accessoires et une salle de gym donnant sur le sud.
L’espace extérieur au nord de la propriété est également complet avec un parking pour les invités, avec accès direct à la villa par une allée privée.
La structure est réalisée avec un système photovoltaïque.
Un lieu exclusif et raffiné, où vous pouvez passer votre temps à la détente entre le bleu de la mer et le vert de la nature.

Bordighera

Via Vittorio Emanuele II, 181
18012 Bordighera (IM)
T +39 0184 262368
F +39 0184 265309

WA +39 344 248 2909

EMAIL info@agenzia-domus.it